Riferimento 1018

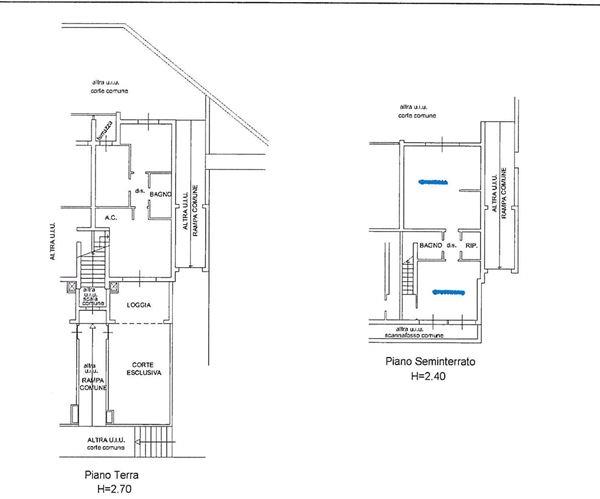
Appartamento su 2 Livelli, Piano Terra e Seminterrato inserito in un complesso immobiliare di 64 appartamenti, realizzato tra il 2002 ed il 2005 è ubicato nella parte di testa del Blocco C così da avere 3 lati di affaccio. All’appartamento con ingresso indipendente, si accede da una veranda di circa 12 mq che sia affaccia su un piccolo giardino privato. Il Piano Terra di circa 55 mq è composto da soggiorno pranzo e angolo cottura, disimpegno, 2 camere da letto di cui una matrimoniale ed una doppia oltre ad un bagno. La camera doppia ha accesso ad un piccolo balcone di circa 4 mq. Al Piano Seminterrato di circa 60 mq si accede attraverso una scala interna oppure direttamente dalla parte esterna del Blocco C in modo tale da rendere indipendenti i 2 Piani. All’interno del Piano Seminterrato, troviamo la zona “taverna” del piano superiore completa di angolo cottura oltre ad un bagno e un vano adibito a lavanderia.

 
Richiesta   :    Euro 290.000,00
Classe.Energetica G
Indice:kwh/mq 175,00
Località ALBERESE
Zona
Mq
Nr.Vani
Piano t/i
Riscaldam. POMPE DI CALORE CALDO FREDDO
Occupazione
Conservaz. OTTIMA
Autoclave AUTONOMO
Tipo Ingresso Indip.
Mq. Garage
Mq. Giardino
Mq. Mansarda
Mq. Taverna