Riferimento 1019

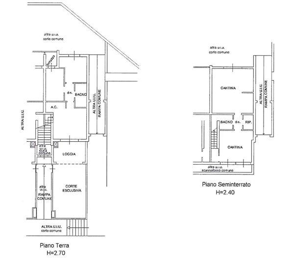
Appartamento su 2 Livelli, sito al Piano Terra e Interrato del Blocco A di un complesso immobiliare composta da 64 appartamenti, realizzato tra il 2002 ed il 2005 è ubicato nella parte centrale. All’appartamento, con ingresso indipendente, si accede da una veranda di circa 10 mq che sia affaccia su un piccolo giardino privato. Il Piano Terra di circa 60 mq è composto da soggiorno pranzo con angolo cottura, disimpegno, 2 camere da letto di cui una matrimoniale ed una doppia con letti singoli, oltre ad un bagno. Da entrambe le camere si accede ad una veranda coperta di circa 15 mq ed un piccolo giardino. Al Piano Interrato di circa 70 mq si accede attraverso una scala interna oppure direttamente dalla parte esterna del Blocco A tramite un corridoio condominiale in modo tale da rendere anche indipendenti i 2 Piani. All’interno del Piano Interrato, troviamo la zona “taverna” del piano superiore completa di angolo cottura oltre ad un bagno e un vano adibito a lavanderia.

 
Richiesta   :    Euro 230.000,00
Classe.Energetica G
Indice:kwh/mq 175,00
Località ALBERESE
Zona
Mq
Nr.Vani
Piano T/S
Riscaldam. POMPE DI CALORE CALDO FREDDO
Occupazione
Conservaz. OTTIMA
Autoclave AUTONOMO
Tipo Ingresso Indip.
Mq. Garage
Mq. Giardino
Mq. Mansarda
Mq. Taverna